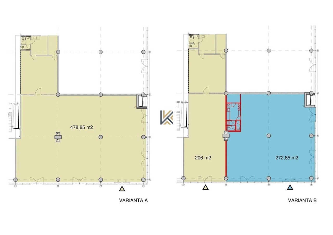
Pronájem obchodních prostor o velikosti 272m2 z celkového obchodu 478,85m2, na rohu budovy Siemensova 4, Praha 5. Vzdálenost od metra 1 minutu, jednotka viditelná z hlavní ulice. Vedle je Puzzle Salads a Kolkovna. Možnost zvětšit o 206m2. Volné ihned.
© 2020 FF Reality 2014, s.r.o.
Cookies
Nastavení cookies: tato webová stránka používá nezbytné soubory cookie k zajištění správného fungování webu a analytické soubory, abychom pochopili, jak se na stránce pohybujete a jaký obsah Vám máme nabídnout. Tyto cookies budou nastaveny až po vašem schválení.Více informací